島村河内駐車場|駐車場詳

  • お問い合わせ
  • 個人情報取扱い
  • サイトマップ
  • お気に入り物件

045-935-7370 営業時間:9:30~18:00 水、日曜、祭日定休

お気軽にご来店下さい お問い合わせ

  • ホーム HOME
  • お部屋を探す SERCH
  • オーナー様へ FOR OWNER
  • ご契約の流れ FOR CUSTOMER
  • 来店予約 APPOINT
  • 会社情報 COMPANY
島村河内駐車場
  • 前のページに戻る
  • お気に入りに追加
  • このページを印刷する
  • この物件を問合わせ

ポイント

・礼金1ヶ月分ー(契約時)
・仲介手数料ー1ヶ月分(契約時)
・保証料ー100%(契約時)・2年更新時40%

・初期費用目安ー[・礼金・仲介手数料・保証料・当月賃料(日割りの場合は変わります)]
          約 57,200円(約4か月分が目安です。)(契約時)
・契約期間ー2年

・更新事務手数料ー新賃料の1ヶ月分と消費税(更新時)
※図面・写真と現況が異なる場合は現況優先とします。

物件詳細

住所 横浜市都筑区池辺町4466
賃料 14,300円 敷金/礼金 -/1ヶ月

外観

駐車場 正面

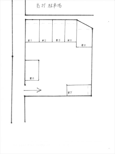
区画図面

配置図

MAP

ストリートビュー

  • 前のページに戻る
  • お気に入りに追加
  • このページを印刷する

この物件へお問い合わせ

お問い合わせ番号 280
お問い合わせ内容
備考欄
※見学希望日、希望条件、ご質問などご記入下さい。
※例:○月○日時見学希望(お急ぎの場合はお電話にてどうぞ
お名前(漢字)  
お名前(フリガナ)  
ご住所
  1. 郵便番号   郵便番号を調べる
  2. 都道府県
  3. 市区町村
  4. 丁目番地
電話番号
メールアドレス
ご希望の連絡方法

※電話をご希望の場合は、お電話番号をご入力頂くようお願い致します。

確認する